Casa Mobile AQUA

5 persone

4 letti

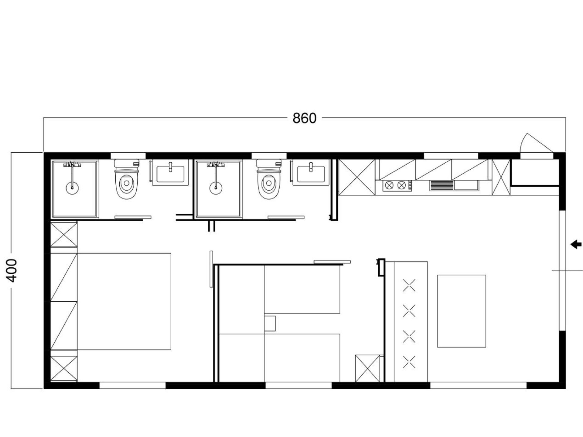
34 mq

2 bagni


Le nuovissime case mobili AQUA (34 mq) sono posizionate accanto alla piscina, in centro al campeggio, alloggi ideali per famiglie con bambini. La casa Aqua può ospitare fino a 5 persone ed è composta da angolo cottura con piano a induzione e lavastoviglie e aria condizionata, soggiorno con divano, una camera da letto matrimoniale, una camera da letto con 3 letti singoli di cui uno a bandiera e due bagni completi di WC, doccia e lavabo. All’esterno una confortevole veranda coperta ammobiliata dove godersi momenti di relax. Un parcheggio auto incluso. Animali NON ammessi.

Le foto e le piantine delle unità abitative sono puramente indicative.

Plus della sistemazione

  • Aria Condizionata

  • Cassaforte

  • Lavastoviglie

  • Macchina da caffè americano

  • Tv

  • Set Lenzuola e Asciugamani

  • Terrazza Coperta

  • 2 bagni

blog image
Trova facilmente gli alloggi e i servizi del Campeggio della Colombaia.
Scarica la mappa